根据菏泽市国资委《菏泽市市属企业阳光采购监督暂行办法》、《伟德国际1949阳光采购实施细则(试行)》相关规定,结合菏建集团公司实际,经伟德国际1949公司批准,对山东菏建建筑集团有限公司菏泽市民文化中心玻璃隔断专业分包项目进行询价采购,择优选定承包商。
一、采购人:山东菏建建筑集团有限公司
二、项目编号:菏建招字[2020]-113号
三、项目名称:菏泽市民文化中心玻璃隔断专业分包项目
四、采购项目情况:
1、招标范围:包工、包料、包质量、包验收的大包形式。
2、工程量:含地弹门约300㎡
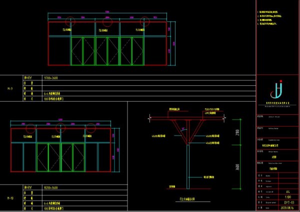
3、工程量为暂估工程量,结算以实际工程量为准,最终结算计算方法为铝合金玻璃隔断外框计算面积,方钢管加固部分不计算面积。
4、规格要求:铝材品牌要求:任远、汇金、南山、豪门:地弹门地弹簧品牌要求:皇冠、GDM、煜强、雅洁;地弹门门锁品牌要求:新革力;其余详见附件附图。
5、付款方式:工程全部施工完成并经采购方(山东菏建建筑集团有限公司)验收合格后支付结算工程款的70%,项目竣工验收完成后支付至结算工程款的95%,剩余5%为质保金,质保期满一年后无息支付。
五、承包商要求:
1、具有统一社会信用代码的营业执照副本(或有效企业法人营业执照副本、组织机构代码证副本、税务登记证副本);
2、法定代表人身份证(法人到场的)或法定代表人身份证复印件及法定代表人授权委托书和其委托代理人身份证(委托代理人到场的);
3、在中华人民共和国注册的承包商,符合《中华人民共和政府采购法》第二十二条的规定,营业执照经营范围涵盖本次招标内容;
4、资格审查方式:资格预审;
5、供应商提供同类项目实施情况业绩,附合同原件;
6、提供报价单。
7、本工程不接受联合体投标。
六、报名方式:
潜在供应商于2020年8月31日-2020年9月2日上午9:00-12:00, 下午 14:30-17:30,持营业执照副本、法定代表人身份证或法定代表人身份证复印件及法定代表人授权委托书和其委托代理人身份证到山东菏建建筑集团有限公司5楼(515室)报名,过期不予受理。
七、监督:
伟德国际1949纪检监察室 (电话:0530-5928562)
八、联系人方式:
联 系 人:李哲
联系方式:0530-5928565
山东菏建建筑集团有限公司
2020年 8月31日
附件:玻璃隔断施工详图
![]() |
![]() |
![]() |




